There are two major reasons which you may have vibrations on the marine engine lube oil system.
On this short article, I’m going to share a little knowledge of things you need to check in case you got such problems.
Firstly I would like to share my experience base on the engine type “Wasilla“. As a new on-signer, after I took over the engine, it happens that the off-signer was unable to try out the engine with me before leaving due to time. On the second day, the vessel has to sail out. The notice was given, as usual, then we proceed to engine preparation. Started the lube oil pump, then find a lot of vibrations coming from all lube oil lines, lube oil auto, and duplex filters, etc.
I stopped the pump, thinking it was the pump gear in bad condition, then changed to another pump, the same vibration everywhere. I asked the old crew, they said all is normal, it usually likes this.
Due to time given prepare the engine, I had no option than to quit the troubleshooting and start the engine since all pressure, pump Amp, and safety systems are all in normal.
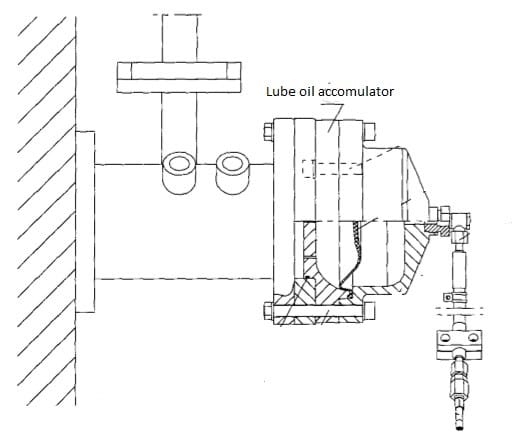
Now, since it was also my first time working with such type of engine, while the ship was underway, I consulted with the makers manual, checked on the lube oil system to know more. Along the line, I found the dampening system “lube oil accumulator”.
Related post: Cause of an engine crankcase and piston Explosion
After reading through, I found out that the vibration was because of the possibly “diaphragm damage”. On arrival, I opened and found the diaphragm in damaged condition.
What is the work of this lube oil accumulator?
Well someone may ask the same question, the work of the accumulator is to create a balance in the system. It’s designed in such a way to air pressure pressing on the diaphragm will be 1:1.3…

Meaning if your lube oil pressure is 4 bar, you are to press with 2.5 bar of air, to balance the system. By so doing you will eliminate the vibration on the system.
The second thing which may cause vibration on lube oil system could be the pump problem (airlock, gear, filter) as I stated before, valve problem (maybe half open) etc.
Therefore when you have such a problem, check for the above mentioned. Then all will be fine.
Share your comments if this article helps you. If you have more opinion or questions, you can also drop a comment below.
Subscribe to our newsletter below to be the first to read more updates




Thanks for this article, I had likely same problem. the author is right. Nice one marine and offshore insight.
Thanks for this article, I had likely same problem. the author is right. Nice one marine and offshore insight.