Marine Air compressor is used onboard vessels to compress air for engine starting, engine control air usage, cleaning, blowing downline cargo contents in tanker ship, etc.
This device is mainly handled by 4th or 3rd engineer officer. They are to see to its smooth operation and maintenance.
Also, SEE; 4th Engineer Duties and Responsibilities
On this article, we are going to discuss easy step by step on how to carry out safe overhauling.
Steps to ensure safe overhauling of an air compressor
Before you start the overhauling of an air compressor, firstly make sure all safeties observed.

- Switch off the main power supply
Place a post on the switchboard eg “do not switch ON”
Close the discharge or outlet valve.
Open the drain valve to allow any trapped pressure to release.
Make sure the air compressor is cold, to above burn.
Drain the crankcase oil. See makes manual.
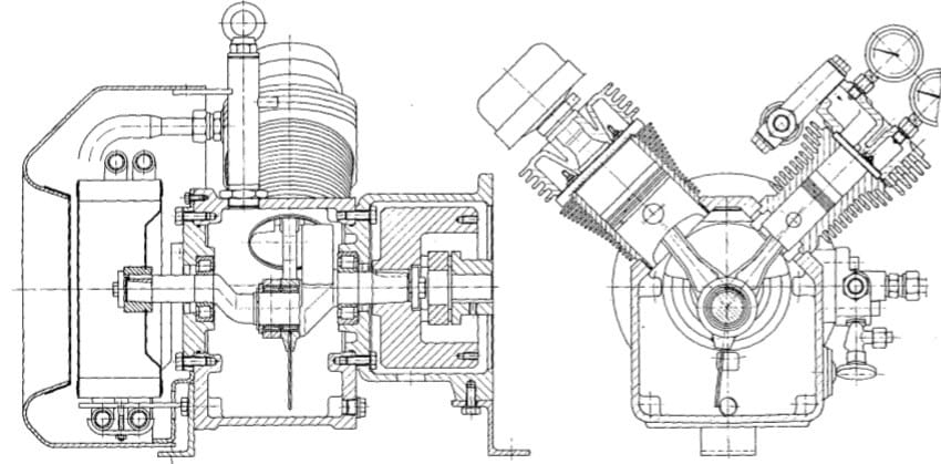
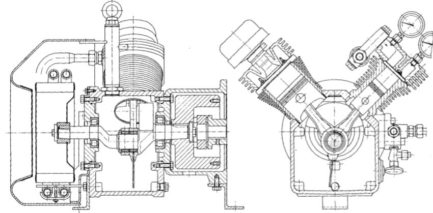
The next step is base on a piston air compressor;
- Remove all high-pressure pipe connections linking to the top cylinder.
Open nuts “8” on the first stage or second stage.
Left the cylinder head “3” with the sealing gaskets “10”.
Remove the read-type value “9” with the packing ring “11”
Now, carefully remove the cylinder “1”. Here you need to turn the piston to the top for straight and easy removal.
Take out the sealing gasket “2”
Unscrew the stud bolts “6” for easy access.
Related post: How to overhaul and operate a marine centrifugal pump
Now you are down with the top opening, if you are to change only piston rings, valves and/or piston, there is no need to continue to the next step. You can clean the cylinder head properly, change the piston rings ( if required), change the gaskets, lap the valves or replace the new one and a couple back from the sixth step up.
If you are to change the crankshaft bearings or crankshaft itself, continue with the steps below:
- Disconnect the 3 phase electric motor cable and unscrew the foundation bolts, carefully remove the motor from the compressor.
Unscrew coupling with the help of extractor tools.
Unscrew the vibration damper and carefully remove it from its place.
Unscrew the damper guard and remove it from the place for easy access.
Lose the compressor foundation bolts ( horizontal type), place a wood or any high tools and Carefully turn the compressor on top the wood to open the crankcase from the bottom. Note, if your compressor is a vertical type with side crankcase, there is no need to lose the foundation.

- By now you might have gotten access to unscrew the connecting rod from the crankshaft.
Remove the connecting rod and inspect the crankpin. Clean carefully and replace the bearing.
Note; to avoid damage to the cooling fan, it’s better to remove it. Install back starting from point 14 to point 1.
To change the crankshaft, continue with below steps:
- Unscrew the main bearing cover of both ends.
Remove the oil seal and check that all sides are clear.
Carefully tap the shaft from behind(motor side).
After bearings inspection and replacement, reassemble same way it was removed from point 17.
Note: this guide is for piston horizontal compressor( Sperre and Hatlapa L50, L35, L9/14, etc), the same process can be followed in other compressors. They might have little differences.
If you have questions or contribution, please let us know on the comment box.




It’s sad that my uncle’s factory production had been suffering due to inconsistent air supply caused by a worn-out compressor. Realizing that it was affecting both efficiency and costs, he decided it was time to find a compressor overhaul service to get the equipment back in top-notch condition and keep his operations running smoothly. I’ll tell her you said to make sure all safety precautions have been followed before beginning the overhaul of an air compressor.
https://www.austcomp.com.au/services/compressor-overhauls